Verkocht €245.000 k.k. - Bestaand , Vrijstaand woonhuis
Vrijstaand woonhuis met 2 garages en een siertuin
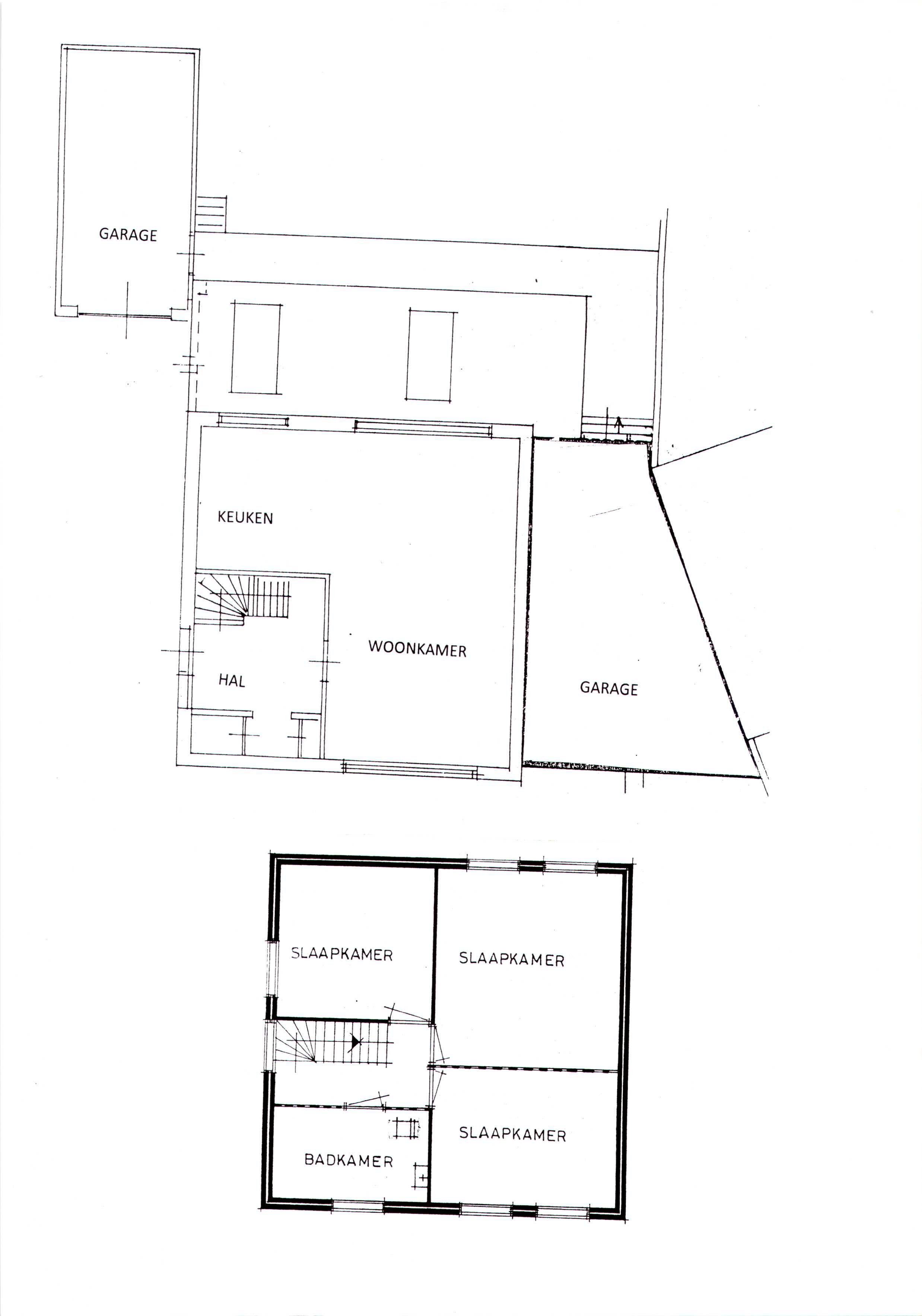
Souterrain:
Geheel onderkelderd en verdeeld in een provisiekelder, waskelder en grote feestkelder met tegelvloer. Deze ruimte is multifunctioneel en uitermate geschikt voor werken aan huis. Te denken aan kantoorruimte of beautysalon.
Begane grond:
Entree/hal met laminaatvloer, uitgebreide meterkast, gastentoilet met hangtoilet en fonteintje, trap naar de verdieping.
Glazen deur naar de living.
Ruimte woonkamer ca. 7.65 x 4.20 met laminaatvloer, strakke gashaard en openslaande tuindeuren naar het overdekt terras. Aansluitend open verbinding naar de keuken ca. 3.00 x 3.50 met aanbouwkeuken ca. 3.00 x 3.00 met aanbouwkeuken v.v. keramische kookplaat, oven, afzuigkap, koelkast, magnetron en vaatwasser.
Groot overdenkt zonneterras ca. 8.00 x 4.00 met 2 lichtkoepels en aansluitend omsloten siertuin met optimale privacy, goede bezonning en fraai uitzicht. Zij-uitgang.
Vanuit de tuin toegang tot 2 garages resp. ca. 5.70 x 3.00 met tegelvloer en 7.00 x 4.00. Beide garages zijn voorzien van een electrische sectionaalpoort.
Verdieping:
Overloop met marmeren vloer, drie slaapkamers resp. ca. 4.50 x 4.20, 4.20 x 3.00 en 3.50 x 3.50 v.v. een laminaatvloer.
Badkamer ca. 3.50 x 2.00 met ligbad, douche, wastafel en hangtoilet.
Zolder:
Vlizotrap naar een grote bergzolder met Nefit Topline cv-combiketel 2007.
Bijzonderheden:
- Dakbedekking woonhuis vernieuwd en geisoleerd met undidek in 2006
- Dakbedekking platte daken vernieuwd in 2005
- Rustige woonstraat met fraai uitzicht aan achterzijde
- Pand gedeeltelijk. v.v. dubbel glas en geheel rolluiken
- Voorlopig Energielabel C
De Meetinstructie is gebaseerd op de NEN2580. De Meetinstructie is bedoeld om een meer eenduidige manier van meten toe te passen voor het geven van een indicatie van de gebruiksoppervlakte. De Meetinstructie sluit verschillen in meetuitkomsten niet volledig uit, door bijvoorbeeld interpretatieverschillen, afrondingen of beperkingen bij het uitvoeren van de meting.
Meer informatie
- Bouwjaar: 1976






































