Verkocht €125.000 k.k. - Bestaand , Woonhuis
Instapklaar woonhuis met aanbouw en siertuin.
Souterrain:
Provisiekelder ca. 5.50×2.75 met CV Ecomline HR combiketel 2000.
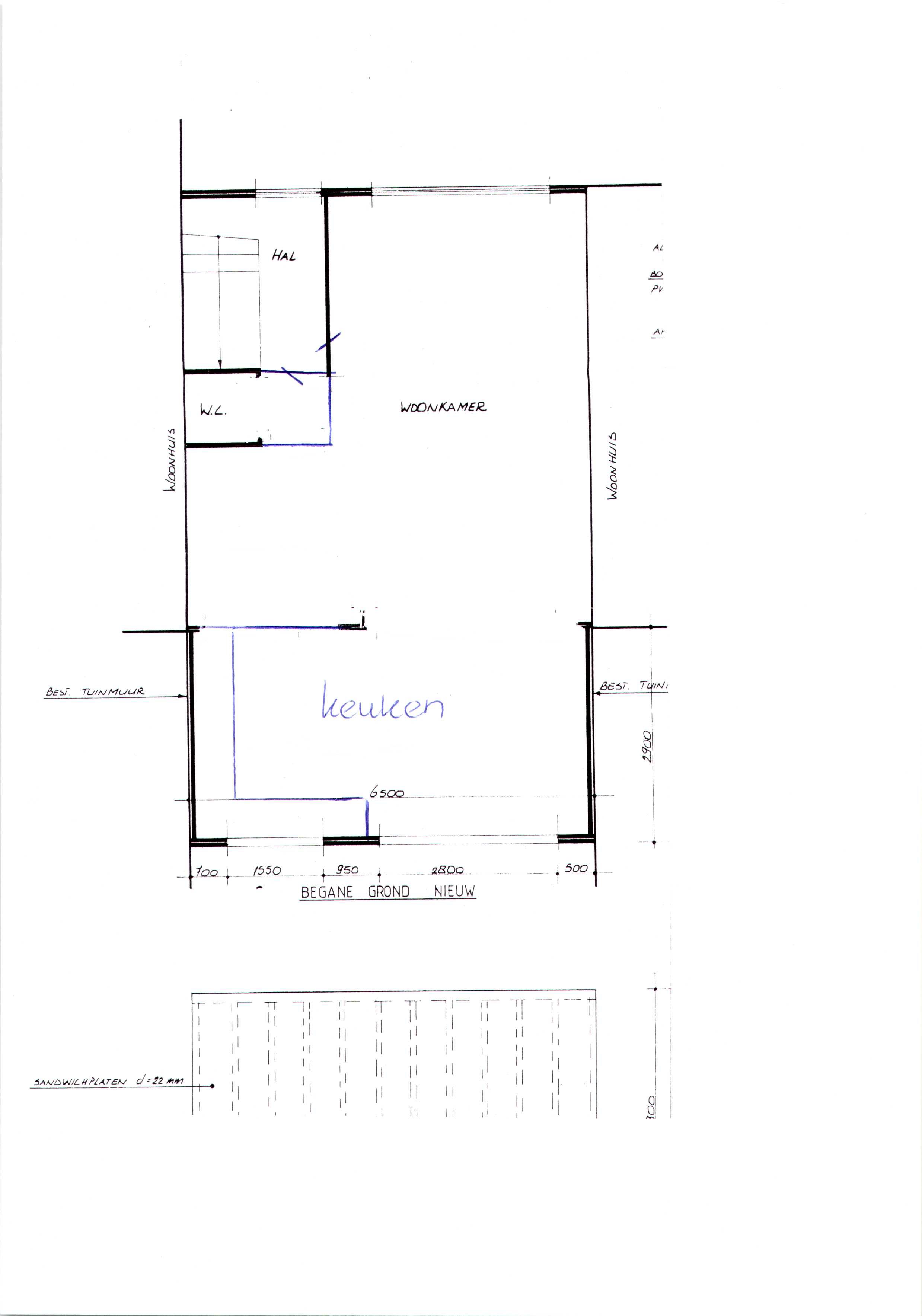
Begane grond:
Entree/hal met laminaatvloer, gastentoilet met fonteintje, meterkast en trap naar de verdieping.
Ruime L-living met laminaatvloer. Aansluitend grote aanbouw met leefkeuken.
Aanbouwkeuken met gascomfort, oven, afzuigkap, koelkast en diepvries. Totaal 11.00×5.65/3.55.
Vanuit de woonkamer schuifpui naar de tuin ( achterom bereikbaar ) met tuinhuis.
Verdieping:
Overloop met laminaatvloer, drie slaapkamers resp. ca. 4.60×2.85, 3.55×2.80 met wastafel en 2.80×2.80.
Badkamer met ligbad.
Bijzonderheden:
* dakbedekking 6 jaar geleden vernieuwd
* moderne frisse woning
* gehele woning kunststof kozijnen met dubbel glas
* rolluiken
* goede uitvalswegen
* voorlopig energielabel E
De Meetinstructie is gebaseerd op de NEN2580. De Meetinstructie is bedoeld om een meer eenduidige manier van meten toe te passen voor het geven van een indicatie van de gebruiksoppervlakte. De Meetinstructie sluit verschillen in meetuitkomsten niet volledig uit, door bijvoorbeeld interpretatieverschillen, afrondingen of beperkingen bij het uitvoeren van de meting.
Meer informatie
- bouwjaar: 1962


































