Verkocht €229.000 k.k. - Bestaand , Vrijstaand woonhuis
Vrijstaand woonhuis met garage, 4 slaapkamers en diepe siertuin
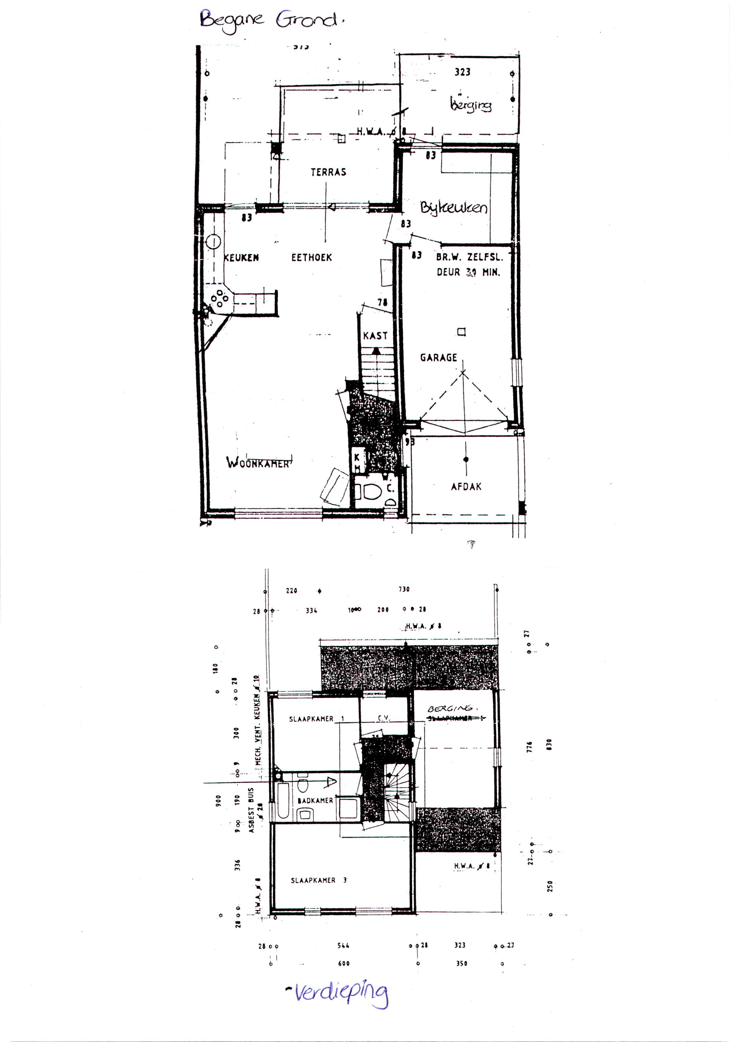
Begane grond:
Overdekte entrée, hal met tegelvloer, meterkast, gastentoilet met fonteintje en trap naar de verdieping.
Ruime living ca. 8.50 x 4.00/4.50/5.50 met grindvloer en strakke inbouwhaard. Open verbinding met de keuken v.v. luxe greeploze aanbouwkeuken in hoogglans wit met 5-pits gascomfort, oven, afzuigkap en koelkast.
Ruime bijkeuken ca. 3.25 x 2.70 met inpandige doorgang naar de garage ca. 5.50 x 3.00.
Berging ca. 2.50 x 2.50.
Overdekt zonneterras met afneembare windzeilen.
Diepe en fraai aangelegde siertuin met 2 houten tuinhuizen, zij– en achteruitgang.
Er bestaat de mogelijkheid om middels auto de tuin aan de achterzijde te bereiken en eventueel nog een extra dubbele garage in de achtertuin te plaatsen.
Verdieping:
Ruime overloop met parketvloer, drie slaapkamers resp. ca. 6.00 x 3.36, 3.34 x 3.00 en 4.00 x 3.00 alle voorzien van een parketvloer.
Separate wasruimte met een cv-combiketel 2005.
Betegelde badkamer met ligbad, douche, wastafel en een 2e toilet.
Verdieping 2:
Ruime overloop, slaapkamer 4 ca. 4.00 x 3.00 met dakraam en een bergzolder.
Bijzonderheden:
- pand is geheel voorzien van hardhouten kozijnen met dubbel glas
- geheel rolluiken
- alarminstallatie aanwezig
- computergestuurd en handbedienbaar paneel voor rolluiken en verlichting op afstand te bedienen
- goede uitvalswegen en winkelvoorzieningen in de direkte nabijheid
- energielabel B
De Meetinstructie is gebaseerd op de NEN2580. De Meetinstructie is bedoeld om een meer eenduidige manier van meten toe te passen voor het geven van een indicatie van de gebruiksoppervlakte. De Meetinstructie sluit verschillen in meetuitkomsten niet volledig uit, door bijvoorbeeld interpretatieverschillen, afrondingen of beperkingen bij het uitvoeren van de meting.
Meer informatie
- bouwjaar: 1987








































